Appartamento a Venezia con affciio sopra il Canale

750.000 €
170 m2
2 Camere
2 Bagni
Codice
A1396
Città
Venezia (Santa Croce)
Categoria
Appartamento
Locali
8
Piano
1
Classe energetica
G
Stato Immobile
Ottimo
Grado
Signorile
Posizione
Centro Storico
Panorama
Vista Aperta
Orientamento
Sud Est
Lati Liberi
2
Tipo Soggiorno
Doppio
Tipo Cucina
Abitabile
Riscaldamento
Autonomo
Tipo Riscaldam.
Caldaia
Tipo Impianto
Radiatori
Fonte Energetica
Metano
Acqua Calda
Autonoma
Infissi
Legno Doppio Vetro
Serramenti
Ottimo
Persiana
Oscurante Legno
Pavim. Giorno
Graniglia
Pavim. Notte
Parquet
Pavim. Cucina
Gres Porcellanato
Pavim. Bagno
Gres Porcellanato
Accessori
Armadio a Muro, Doppi Vetri, Fibra Ottica, Porta Blindata, Rete Dati, Ripostiglio
Gruppo Santa Marina Immobiliare Aena presenta:

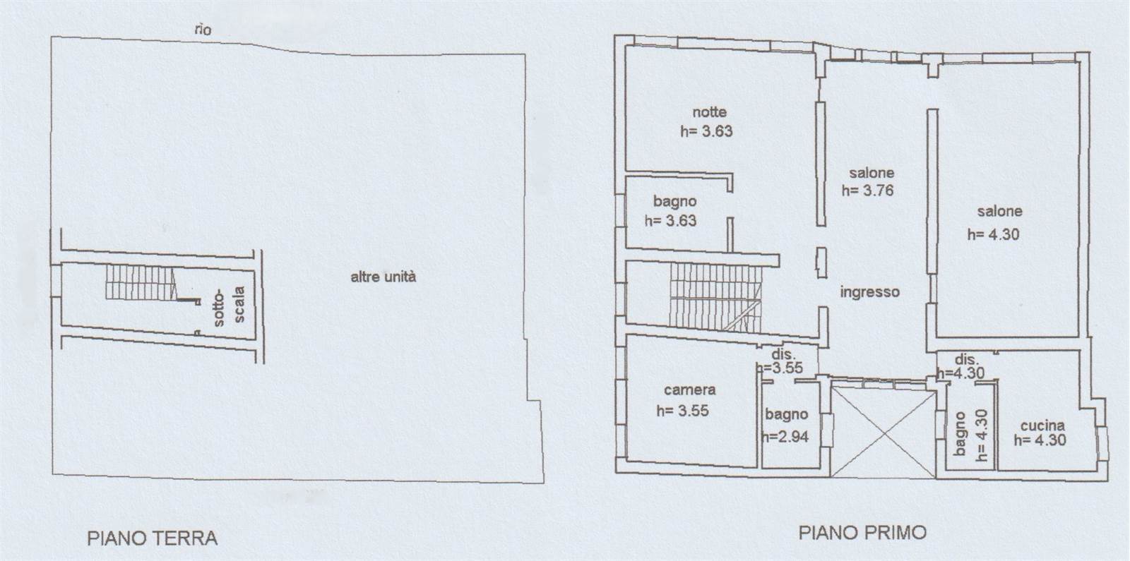
Magnifica unità immobiliare di ampia Metratura, ubicata a Venezia , pochi passi da Campo San Cassiano -Sestiere di Santa Croce.

Tra le caratteristiche Principali ricordiamo:

- Soffitti alti con una media di H 3,53;
- Affaccio sopra un Canale Tipico Veneziano;
- Ottima Distribuzione degli Spazi;
- Luminosità alta distribuita nell'intero arco giornaliero;
- Zona Centrale;
- Comodo ai servizi e mezzi di trasporto;

Per informazioni aggiuntive

PER INFORMAZIONI AGGIUNTIVE
Gruppo Santa Marina Immobiliare AENA 0415649250/3479078198

( La nostra Agenzia detiene il Conferimento Scritto )

GRUPPO SANTA MARINA IMMOBILIARE AENA è tra le prime organizzazioni d'intermediazione immobiliare del territorio Veneziano ad adottare, applicare e sviluppare con successo nuovi sistemi di elasticità commerciale e metodiche di marketing di derivazione internazionale attraverso strumenti di analisi, indagini di mercato e digital strategy per il raggiungimento degli obiettivi.
L'azienda si è fortemente strutturata per offrire alla clientela molteplici servizi.
Santa Marina Immobiliare significa serietà e professionalità,espressa anche attraverso:

Stima immobiliare ,Manuale Immobiliare , Marketing,Gestione Patrimoni Immobiliari,Tecnologie innovative,Home Staging,Valorizzazione Immobile,Assistenza Contrattuale A 360 GRADI.

VISITA IL NOSTRO SITO
www.santamarinaimmobiliare.it

Mattia Marchi
Mobile:347 9078198
Ufficio:0415649250












Mappa

Campo San Cassiano , Venezia (VE)

Condividi

Cookie preference